Porzione di bifamiliare in vendita

Stagno Lombardo, Via Pietro Nenni
€ 295.000
6 locali 6 locali
300 Mq 300 Mq
3 bagni 3 bagni

Porzione di bifamiliare in vendita

Stagno Lombardo, Via Pietro Nenni

Descrizione annuncio

AMPIA VILLA BIFAMILIARE CON GIARDINO

Situata a Stagno Lombardo, un comune poco distante da Cremona servito da ufficio postale, scuola, farmacia, negozi, bar e ristoranti.

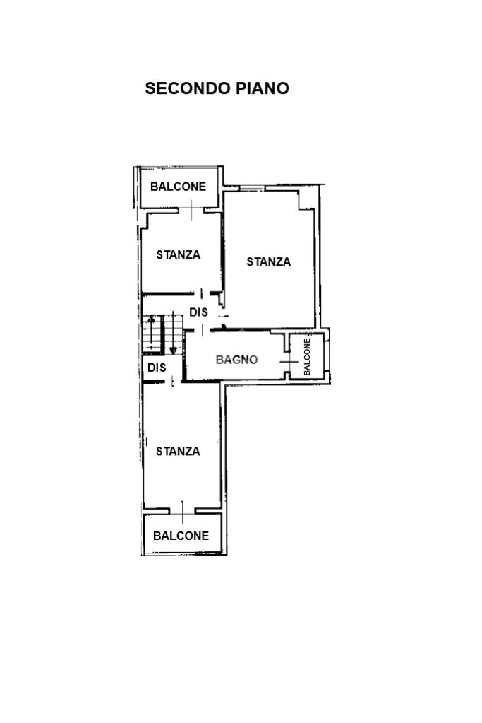
Trattasi di villa a collina di 300 mq disposta su più livelli e caratterizzata da ampio salone in affaccio sul terrazzo, cucina abitabile con balcone coperto, quattro camere da letto di cui una con balcone e doppi servizi.

All’ultimo piano è presente una mansarda di 100 mq termo autonoma e climatizzata, composta da bagno e tre stanze con balcone utilizzate come ulteriori camere da letto-svago.

E’ presente un’ampia autorimessa di 50 mq con doppia basculante, cantina e locale tecnico.

La casa libera su tre lati ha un giardino sul fronte e sul lato sud.

La villa è in ottimo stato manutentivo, ideale per chi vuole godere di ampi spazi oppure per più nuclei familiari che cercano l’indipendenza.

Per maggiori informazioni vi aspettiamo nel nostro ufficio di Via Dante 137 dove un consulente immobiliare sarà a Vostra disposizione.
Lo studio di via Dante 137 si trova in zona di facile parcheggio, di fronte al Centro Commerciale Italmark ed è comodamente raggiungibile da Porta Venezia.
ORARI DI APERTURA AL PUBBLICO: Dal Lunedì al Venerdì 9.00-12.30 - 14.00-19.30 Sabato 9.00-12.30.

Consigliamo ai nostri affezionati di seguirci anche su Facebook, abbiamo un profilo dove ci piace condividere iniziative. Per una ricerca più semplice scaricate dal vostro smartphone, iphone oppure tablet l’applicazione gratuita Tecnocasa. In tempo reale e a portata di click avrete sempre a vostra disposizione le nostre proposte.

Ogni agenzia ha un proprio titolare ed è autonoma - Le presenti informazioni non costituiscono elemento contrattuale.

Mostra tutto

Caratteristiche

Rif.:
61176716
Piano:
2 di 2 (Piano su più livelli)
Box:
1
Posti auto:
4
Balconi:
3
Terrazzi:
1
Mostra tutto
Prezzo Prezzo
€ 295.000
Rata mutuo Rata mutuo
€ 1.400 / mese
Spese annue Spese annue
€ 0
Proponi il tuo prezzoProponi il tuo prezzo

Classe Energetica

F
F
F
F
F
F
F
F
F
EP globale non rinnovabile:
238.20 kW h/m² anno
EP globale rinnovabile:
0.04 kW h/m² anno
EP invernale del fabbricato:
EP estiva del fabbricato:
Anno di costruzione:
1984
Riscaldamento:
Autonomo
Tipo impianto:
A radiatori
Tipo alimentazione:
Metano

Ti interessa visionare l'immobile?

Fissa un appuntamento  Fissa un appuntamento

Richiedi informazioni

Clicca su Leggi per aprire l'informativa
* Questi campi sono obbligatori

Calcola il tuo mutuo

Semplice e senza impegno
Anticipo

( % )
Mutuo

( % )

pochi semplici passi

inserisci i tuoi dati
Questionario completato
Grazie per aver richiesto un appuntamento senza impegno con un nostro Consulente del Credito e Assicurativo.

Hai inserito correttamente tutti i dati necessari e a breve riceverai una e-mail con un link da convalidare per inviare i tuoi dati.
Affiliato
Unicremona Sas
Via Dante, 137 26100 Cremona (CR)

Il nostro staff


  • Roberto Talamazzi
    Affiliato

  • Gianluca Poltz
    Collaboratore

  • Maria Masciari
    Coordinatrice

  • Maria Grazia Boschetti
    Coordinatrice

  • Dario Cotroneo
    Collaboratore
Via Dante, 137 26100 Cremona (CR)
Zona: Centro - Via Dante - Via Brescia
Mostra su mappa
Orari: dal lunedì al venerdì 9.00-12.30 e 14.00-19.30; sabato 9.00-12.30
Affiliato
Unicremona Sas
Via Dante, 137 26100 Cremona (CR)

2026 Tecnocasa Franchising S.p.A. - P. IVA 08365160152 - Via Monte Bianco 60/A 20089 Rozzano (MI). Ogni agenzia ha un proprio titolare ed è autonoma. Privacy policy | Policy utilizzo | Cookie policy